Funkcjonalne (niezbędne)
Analityczne
Marketingowe

Mieszkanie na sprzedaż Kraków, Bronowice, Bronowice Małe

3 pokoje
66.76 m²
13 930,50 zł/m2
1 piętro
GNK-MS-51041
Oblicz ratę kredytu

930 000 zł

Mieszkanie na sprzedaż
Nowa oferta

Szczegóły oferty

Symbol oferty GNK-MS-51041
Powierzchnia 66,76 m²
Powierzchnia użytkowa [m2] 66,76 m²
Liczba pokoi 3
Technologia budowlana cegła
Piętro 1
Liczba pięter w budynku 2
Stan lokalu bardzo dobry
Mies. czynsz admin. 850 PLN
Usytuowanie narożne
Jan Palka

Jan Palka

Doradca d/s nieruchomości
Nr licencji: 21260

Napisz wiadomość 9 Ofert

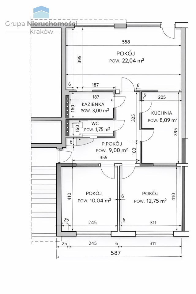
Opis nieruchomości

Do sprzedania 3-pokojowe mieszkanie 66,76 m² | Bronowice | ul. Zapolskiej | narożne | 1 piętro | cegła

Na sprzedaż funkcjonalne, 3-pokojowe mieszkanie o powierzchni 66,76 m² położone na 1 piętrze kameralnego, 2-piętrowego budynku z cegły przy ul. Gabrieli Zapolskiej w Krakowie (Bronowice).

Lokal idealny dla rodziny lub osób szukających spokojnej, dobrze skomunikowanej lokalizacji z pełną infrastrukturą.

Układ pomieszczeń:

  • salon (południe),
  • sypialnia (północ),
  • pokój (północ), 
  • kuchnia (zachód),
  • łazienka,
  • osobne WC,
  • mini pralnia z miejscem na suszarkę.
  • przedpokój .

Do mieszkania przynależy duża piwnica ok. 5 m².

Atuty:

  • mieszkanie narożne - ekspozycja na 3 strony świata (południe / zachód / północ),
  • 1 piętro - najwygodniejsza kondygnacja,
  • solidny budynek z cegły,
  • ogrzewanie miejskie MPEC,
  • stan: do wejścia, odświeżone,
  • spokojne otoczenie zabudowy mieszkaniowej,
  • miejsca parkingowe ogólnodostępne przy budynku,
  • świetna komunikacja: tramwaj i autobus w pobliżu,
  • pełna infrastruktura handlowo-usługowa,
  • szybki dojazd do centrum Krakowa.

Koszty utrzymania:

  • czynsz administracyjny: ok. 850 zł
  • dodatkowo: śmieci, woda, gaz (kuchenka) oraz prąd – wg zużycia
Prowizja 1,5% netto ceny sprzedaży.

???? ul. Gabrieli Zapolskiej 24 – Bronowice, Kraków

Oferta dostępna tylko u nas w biurze. Oferta na wyłączność.
Zapraszam na prezentację.

Kalkulatory

Kalkulator kredytowy

Wysokość raty

PLN
%

Kalkulator kosztów

Podatek od czynności cywilno-prawnych

Taksa notarialna
(opłata notarialna)

Wniosek o wpis do KW

VAT od prowizji
agencji nieruchomości

VAT od taksy notarialnej
(opłaty notarialnej)

Prowizja agencji nieruchomości

Wypisy aktu notarialnego

Razem

Uwaga: mogą wystąpić dodatkowe opłaty za założenie księgi wieczystej oraz ustanowienie hipoteki.

PLN
PLN
PLN
PLN
PLN
PLN
%
PLN

Doradca d/s nieruchomości

Proszę wprowadzić poprawne imię i nazwisko
Proszę wprowadzić poprawny numer telefonu
Proszę wprowadzić poprawny adres e-mail
Proszę zaznaczyć wymagane zgody
Rozwiąż równanie:
10 6
Niepoprawny wynik